Головна >> Продаж квартир >> Об'єкт №212878895

Новая с ремонтом уютная и очень Крутая квартира на Французском бульваре Каркашадзе  (№ 212-878-895)

Новая с ремонтом уютная и очень Крутая квартира на Французском бульваре Каркашадзе фото 1

Ціна: 225 000 $

Характеристики

Ціна: 225 000 $
№ об'єкта: 212-878-895
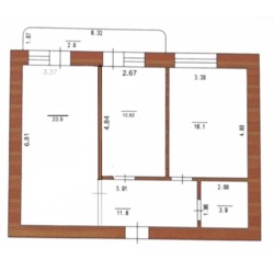
Кімнат: 2 розд
Поверх: 6 / 22 ліфт
Площа: 70 / - / - м2
Санвузол: 1 сумісний
Балкон: балкон
Додатково: новобудова

Адреса: Одеська, Одеса, Приморський, Французский б-р, 2

Продаю очень интересную двухкомнатную квартиру ( по нынешним временам дефицит)

Расположена по адресу Французский бульвар Каркашадзе.
70 квадратных метров!

Расположена на восточную сторону , с видом на Французский бульвар!
Квартира имеет две полноценные комнаты , санузл , кухня- студия и вместительная прихожая!
Комната и кухня-студия имеют общий большой балкон !!!
В квартире выполнен качественный ремонт с использованием современных материалов , заказная мебель с встроенной техникой !!!

Цена 225 000$ , вся встроенная мебель и встроенная техника в подарок!

Всё оборудовано к комфортному проживанию !!!

А по недвижимости только Ан Ковчег!

ЗАРУБА В НЕДВИЖИМОСТИ!!!

0938976725 Сергей Викторович.
Ан Ковчег дарит СЧАСТЬЕ))

Об'єкт на карті

Замовити зворотній дзвінок